Geberit ProPlanneri projekteerimistarkvara Geberitiga projekteerite turvaliselt
Geberit ProPlanneri
Geberit ProPlanneri projekteerimistarkvaraga annab Geberit teie kasutusse viimistletud tööriista.
Geberit ProPlanner on kohandatud projekteerivate paigaldajate ja sanitaarettevõtete vajadustele, mis tegelevad ise keskmiste kuni suuremate projektide projekteerimise ja arvutustega.
Projekteerimismoodulid katavad kogu sanitaartehnika – alates joogivee-, kanalisatsiooni- ja paigaldussüsteemidest (Geberit Duofix / Geberit GIS) kuni sademevee äravoolusüsteemini (Geberit Pluvia).
Projekteerimismoodulid
Paigaldussüsteemid
Kiire, lihtne ja tõhus paigaldussüsteemi projekteerimine:
- Paigaldussüsteemide projekteerimine
- Geberit Duofixi ja Geberit GIS-i tootevalik
- Projekteerimine kiirsisestuse abil
- Paigaldussüsteemi kiire, lihtne ja tõhus projekteerimine
- Ekspordifunktsioon detailse 3D-projekteerimise mooduli jaoks
- CAD-ekspordiliides (Autodesk® RealDWG®)
- Uusimad standardid ja Geberiti tooted on integreeritud
- Arvutamine vastavalt Geberiti nõuetele ja standarditele
- Automaatne materjali-, detaili-, pakkumis- ja lõikenimekirjade väljastamine
- Automaatne korruseplaani, kõrgusplaani ja paigaldusjooniste väljastamine

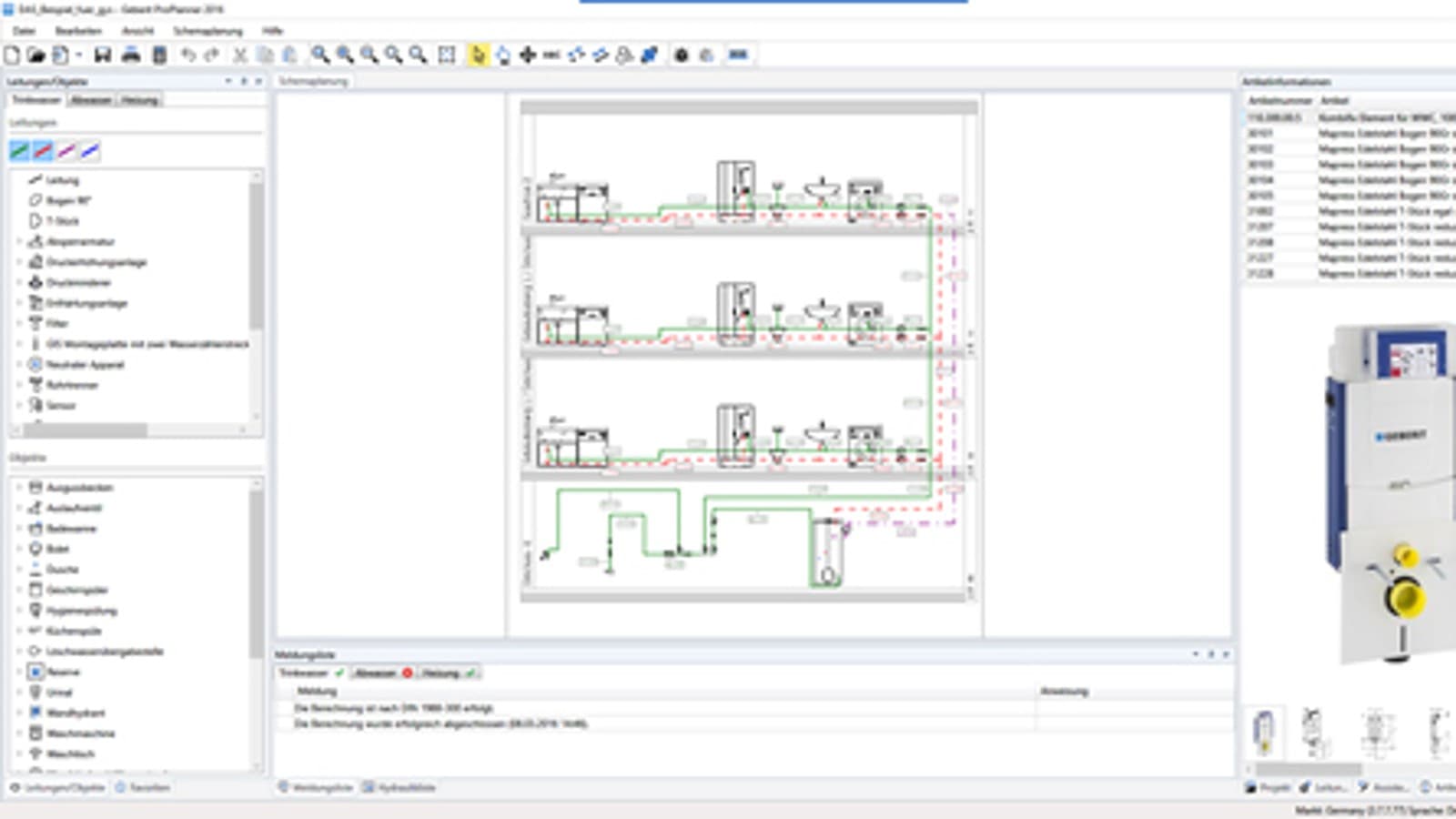
Skeemi planeerimine
Graafiliselt üksikasjalik torustikusüsteemide projekteerimine:
- Joogivee- ja kanalisatsioonisüsteemide projekteerimine
- Tootevalikus Geberit Mepla, Geberit PushFit, Geberit Mapress roostevaba teras, Geberit Mapress vask, Geberit PE, Geberit Silent-PP, Geberit Silent-db20 ja Geberit Silent-Pro
- Projekteerimine skeemil
- Graafiliselt üksikasjalik torustikusüsteemide projekteerimine
- CAD-ekspordiliides (Autodesk® RealDWG®)
- Uusimad standardid, normid ja Geberiti tooted on integreeritud
- Arvutamine vastavalt riigipõhistele normidele
- Automaatne materjali-, detaili-, hüdraulika- ja pakkumiste loendite väljastamine
- Skeemijooniste automaatne väljastamine

Detailplaneerimine 3D
Sanitaarsõlmede kõikehõlmav ja detailitruu projekteerimine:
- paigaldus-, joogivee- ja kanalisatsioonisüsteemide projekteerimine
- Tootevalikus on Geberit Duofix, Geberit GIS, Geberit Melpa, Geberit PushFit, Geberit Mapress roostevaba teras, Geberit Mapress vask, Geberit PE, Geberit Silent-PP, Geberit Silent-db20 ja Geberit Silent-Pro
- Projekteerimine korruseplaanil, kõrgusplaanil ja 3D-s
- Sanitaarsõlmede kõikehõlmav ja detailitruu projekteerimine
- CAD-import ja -eksport (Autodesk® RealDWG®)
- Vahetu projekteerimine CAD-plaanide põhjal
- Uusimad standardid, normid ja Geberiti tooted on integreeritud
- Arvutamine vastavalt Geberiti nõuetele ja standarditele
- Automaatne materjali-, detaili-, pakkumis- ja lõikenimekirjade väljastamine
- Automaatne korruseplaani, kõrgusplaani, 3D- ja paigaldusjooniste väljastamine

Katuseäravool
Optimaalne hüdrauliline, ökonoomne ja projekteerimiskindel mõõtmestamine:
- Geberit Pluvia alarõhu-katusekuivendussüsteemide projekteerimine
- Tootevalikus on Geberit PE, Geberit Silent-db20 ja Geberit Pluvia
- Projekteerimine isomeetrias
- Optimaalne hüdrauliline, ökonoomne ja projekteerimiskindel mõõtmestamine
- CAD-impordi- ja -ekspordiliidesed (Autodesk® RealDWG®)
- Katusepinna kalkulatsioon CAD-plaanidel
- Uusimad standardid, normid ja Geberiti tooted on integreeritud
- Arvutamine vastavalt riigipõhistele standarditele või Geberiti eeskirjadele
- Materjalide, hüdraulika ja pakkumiste nimekirjade automaatne väljastamine
- Isomeetriajooniste automaatne väljastamine

Heitvee eelfabrikatsioon
Kanalisatsioonisüsteemide detailitruu projekteerimine täpsete liitmikega:
- Kanalisatsioonisüsteemide projekteerimine
- Tootevalikus on Geberit PE ja Geberit Silent-db20
- Projekteerimine korruseplaanil, kõrgusplaanil ja 3D-s
- Kanalisatsioonisüsteemide detailitruu projekteerimine täpsete liitmikega
- CAD-impordi- ja -ekspordiliidesed (Autodesk® RealDWG®)
- Vahetu projekteerimine CAD-plaanide põhjal
- Uusimad standardid ja Geberiti tooted on integreeritud
- Arvutamine Šveitsi heitveestandardi järgi
- Automaatne materjali-, detaili-, pakkumis- ja lõikenimekirjade väljastamine
- Automaatne korruseplaani, kõrgusplaani, 3D- ja paigaldusjooniste väljastamine

Tarkvara allalaadimine ja litsentsimine
Tarkvaralitsentsid
Ühekordse registreerimisega pärast Geberit ProPlanneri installimist saate litsentsivõtme, mille abil aktiveeritakse paigaldussüsteemide moodul tasuta.
Skeemide projekteerimise moodul torustikusüsteemidele, üksikasjalik projekteerimine 3D-s, katusekuivendus ja kanalisatsiooni eelvalmistus on tasulised. Pärast tarkvarakoolituse läbimist annab Geberit kõigile koolitusel osalejatele projekteerimistarkvara tasuta kasutada. Täiendava teabe ja litsentside kohta info saamiseks pöörduge palun Geberiti või oma Geberiti müüginõustaja poole.
Ettevõttelitsentsiga saate Geberit ProPlannerit oma ettevõttes installida ja aktiveerida kui tahes mitu korda. Koolitustel kasutajatele ning kõigile haridusasutustele on tarkvara tasuta.
Tarkvara allalaadimine
Laadige alla kõige uuem Geberit ProPlanneri projekteerimistarkvara programmiversioon.
Süsteemi eeldused
Palun kontrollige enne projekteerimistarkvara allalaadimist vajalikke süsteemitingimusi:
| Minimaalne | Soovituslik | |
|---|---|---|
| Operatsioonisüsteem | Windows 8.1 Windows 10 (alates 1809) | Windows 10 (alates 1809) |
| Protsessor | Intel või AMD mitmetuumaline protsessor | Intel või AMD mitmetuumaline protsessor |
| Töömälu | 2 GB | 4 GB |
| Kõvakettamälu | 3 GB vaba | 6 GB vaba |
| Graafikakaart | 64 MB, DirectX 9 | 256 MB, DirectX 9 |
| Ekraan | 1280 pikslit horisontaalne lahutusvõime, 900 pikslit vertikaalne lahutusvõime | 1920 pikslit horisontaalne lahutusvõime, 1080 pikslit vertikaalne lahutusvõime |
| 96 dpi (kuvasuurus) soovituslik | ||
| Veebiteenused | Vajalik juurdepääs internetile Kehtiv e-posti aadress | |
| Süsteemi osad | Sisalduvad tarnekomplektis ja installitakse automaatselt: - Microsoft .NET 4.7 - Microsoft DirectX 9 |
Tarkvarakoolitused
Selleks, et Geberit ProPlanneri moodulit veelgi tõhusamalt kasutada, pakume teile nii spetsiaalseid tarkvaraseminare kui ka individuaalseid kohapealseid tarkvarakoolitusi teie piirkonnas.
Frequently asked questions about Geberit ProPlanner
Can I export reports and drawings from Geberit ProPlanner?
Yes, the software enables the export of detailed reports, material lists and drawings in various formats for documentation and dissemination.
Does Geberit ProPlanner contain a database of Geberit products?
Yes. Geberit ProPlanner offers access to an up-to-date and comprehensive database of Geberit products including technical specifications and installation details.
Is Geberit ProPlanner also suitable for large projects?
Yes. The software has been developed so that sanitary projects of all sizes can be created – from smaller residential projects to large commercial construction projects.
Vasakul
Geberit ProPlanneri allalaadimine: